

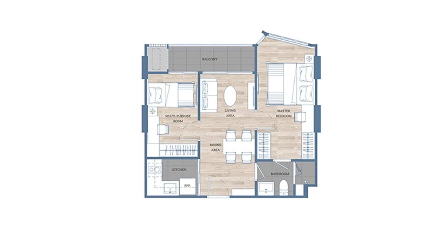
* 1 ห้องนอน 1 ห้องน้ำ พื้นที่ใช้สอย 34.75 – 43.75 ตร.ม.
* 1 ห้องนอน 1 ห้องน้ำ 1 ห้องอเนกประสงค์ พื้นที่ใช้สอย 49.00 – 50.75 ตร.ม.
1
ห้องนอน
1
ห้องน้ำ
สระว่ายน้ำ ยาว 55 เมตร
สวนส่วนกลาง สวนสำหรับสัตว์เลี้ยง
เจ้าหน้าที่รักษาความปลอดภัย 24 ชั่วโมง, กล้องวงจรปิด 24 ชั่วโมง, LIV-24 บริการดูแลความปลอดภัยจากศูนย์ควบคุมแบบเรียลไทม์ 24 ชั่วโมง
Co-Working & Retreat Space พื้นที่ทำงานพร้อมเก้าอี้นวด, Pantry Corner พื้นที่เตรียมอาหาร, Glimmering Lobby โถงต้อนรับ, ห้องโยคะ, EV Charging Station
ความคืบหน้าโครงการ
โครงการเสร็จสิ้น
สร้างเสร็จเมื่อ
จำนวนแบบห้อง
จำนวนยูนิต
ที่อยู่
เชียงใหม่ เมืองเชียงใหม่ ฟ้าฮ่าม
พัฒนาโดย
บริษัท แสนสิริ จำกัด (มหาชน)
ประเภทอสังหาฯ
คอนโด
| เงื่อนไขเพิ่มเติม | เงื่อนไขเพิ่มเติม เนื้อที่โครงการ 3 ไร่ 0 งาน 0 ตร.วา |